Straightening unit. A battery of rollers fitted on multi-position revolvers straights the wire.
Cutting and chamfering.
The wire can be chamfered at the cut on both ends if required.
Bending. The machine can apply various bending processes according to the type of bending tools used and the type of bends to be made.
Details that make the difference
Program your geometry and produce your wire part, quickly and simply
360° feasibility studies
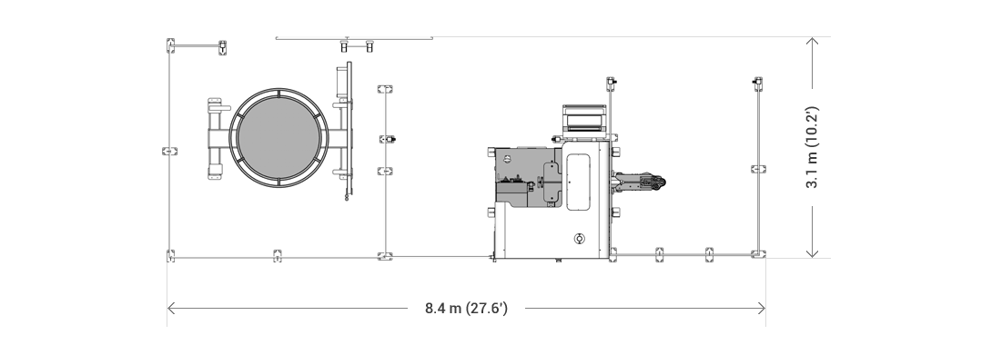
Small footprint and high technology
Make any complex 3D geometry utilizing the compact footprint of the bending head, its orbital movement around the wire axis and the dual turret rotating clockwise and counterclockwise.
Precision Edges
CNC-controlled cutting process
Get better cutting edges and increase tool life. The cutting system of the E-FLEX is managed by a dedicated CNC-controlledaxis for adjusting the tool stroke and direction.
Quality
Grooves – no problem
Capable of making parts with superiorfinish, E-FLEX has optimized axes and machine cycles specifically for grooving techniqu
Check
Continuous monitoring
The integrated camera allows continuous monitoring of the processing zone from the viewing window in the control panel.
Expand your production
Increase your business possibilities, wire and tube bending technologycompliment the production of unique,high-designparts and open the way to new opportunities.
Choose the safety for your job
E-FLEX is CE certified according to the strictest safety standards and equipped with safeguarding features to protect the operator..
Increase your production efficiency
Prometheus provides reliable quotes and allows you to identify the best production strategy for both single parts and entire production batches.
It also allows you to manage logistics, planning, monitoring, and productivity analysis with the capability to integrate to your ERP.
All the systems communicate with each other and simulate the production processes to simplify the operator's work and resolve any detected problems.
E-FLEX Technical specifications
Bending capacity
Wire R = 130,000 psi (900 N/mm2)
Up to Ø .31'' (8 mm)
Wire R = 72,500 psi (500 N/mm2)
Up to Ø .39'' (10 mm)
Machine features
CNC axes
5
Bending angle
0.1° - 240°
Bending radius
.02'' (0.5 mm) - Infinite
Distance between bend die axis and rear dimension of head